This 3-bedroom, 2-bath ranch-style home sits on 97.15 acres in Claremore, Oklahoma. The house offers 1,924 square feet and includes an additional office space. At the same time, the land is currently used as a hay meadow, which adds a practical use from day one. This setup could work well for someone interested in farming, livestock, or long-term land use.
The home itself provides a straightforward layout, while the acreage carries most of the opportunity. In addition, two ponds on the property support both agricultural and recreational use. This balance makes the property flexible depending on how someone wants to use it over time.
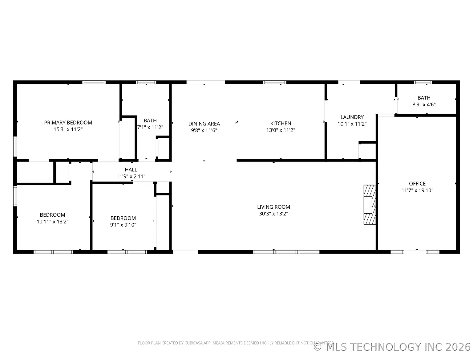
Property Details
Here is a clear overview of the home and land features.
- Bedrooms: 3
- Bathrooms: 2
- Square Footage: 1,924 sq ft
- Lot Size: 97.15 acres
- Property Type: Single-family ranch home
- Year Built: 1970
- Condition: Updated home with functional systems and maintained structure
Condition and Opportunity
The home has seen updates, which helps with everyday usability. Systems like heating, cooling, and windows appear to be in working condition. However, some areas may still reflect the original build style. This could suit someone who prefers to update gradually.
The land already serves as a productive hay meadow, which adds immediate use. In addition, the presence of ponds opens up more possibilities for livestock or recreation. Because of this, the property leans toward practical land use rather than just residential living.
Interior and Layout Potential
The layout includes a living room with a fireplace, a dining area, and a kitchen with granite counters. These features keep the main living areas functional and easy to use. The office space with outside entry could work for remote work or a small business setup.
All bedrooms are on one level, which simplifies movement throughout the home. The layout seems practical for everyday living, although some finishes may feel dated. Not a fan of carpet in high-traffic areas, but that is an easy update.
Land and Outdoor Space
The 97.15 acres are the main feature of this property. The land includes open meadow areas, mature trees, and two ponds. This mix allows for different uses, from grazing animals to outdoor recreation.
There is enough land here for farming, livestock, or simply maintaining privacy. The ponds also add value for water access and general use. This kind of acreage gives flexibility without needing major changes.
Location and Lifestyle Use
The property sits in a rural area near Claremore, which supports a quieter lifestyle. At the same time, it remains connected to nearby services and daily needs. This balance can work well for those who want space without being fully remote.
This setup could suit full-time living, especially for someone working remotely or managing land. It may also appeal to those looking for a long-term land investment. The size and layout allow for different plans over time.
Final Thoughts
This property combines a functional home with large, usable acreage. While the house may need minor updates, the land offers immediate purpose. The ponds, meadow, and open space create a solid base for rural living. For someone focused on land use and flexibility, this is a practical option to consider.
If you’re interested in learning more about this property, please contact the listing agent through the Zillow link provided below the photos.























Listed on Zillow.