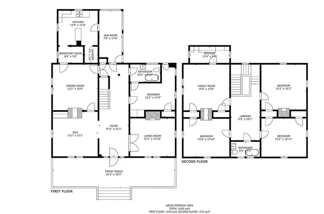
Wow! I sure wasn’t expecting those interior details! I haven’t seen details like that before and especially in a house like this. The house was built in 1927. It is located on .31 acre in Reidsville, North Carolina. The house features a covered front porch, leaded glass, original wood floors, wide baseboards, unique newel post, chair rails, crown moulding, elaborate mantels and pretty light fixtures. While this house has nice details, it does need work and the price feels a bit high to me for the location. There is a detached storage building on the property. Four bedrooms, two bathrooms and 3,024 square feet. $255,000
Contact Teresa S. Knowles with Century 21 The Knowles Team: 336-613-8835
From the Zillow listing:
LOOKING FOR A HISTORIC PROJECT? Step into timeless character w/this circa 1920s Colonial Revival home on historic South Main Street in Reidsville. Rich in charm & architectural detail, this spacious residence offers generous rooms, high ceilings & abundant natural light thru out. Classic features reflect the craftsmanship of its era, while the layout provides endless potential for restoration or modern updates. With 3,000+SQFT, this 4-bedroom, 2-bath home is ideal for those seeking space, history & opportunity. Situated along one of Reidsville’s most established streets, enjoy close proximity to downtown, local shops, dining & community events. Whether you envision restoring its historic beauty or creating a one-of-a-kind showplace, this property is a rare find full of character & possibility. Being sold as-is—bring your vision & make history your own! The second floor does not have central heat/air but is included in SQFT; the first floor has gas heat/central air. SEE AGENT REMARKS.













































